Fire protection system heroal D 65 C FP

heroal D 65 C FP

System solutions for E30/EW30 fire doors and fire-resistant glazing

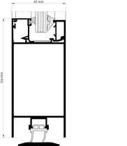
The heroal D 65 C FP profile system's single- and double-casement fire doors, which have been tested to EN 1364-1 and 1634-1 standard and approved in accordance with the national classification report, offer various design options including side sections and transom windows. The profiles of the heroal D 65 C system provide a basis that can be extended to create fire protection barriers with just a few additional components. Versions with nonbearing protective wall constructions are also possible in a variety of designs.

Basis for approval for the Netherlands and Austria.

Design options

  • Opening types: single- and double-casement inward and outward opening swing doors with superimposed or concealed overhead door closers or an automatic hinged door drive system
  • A wide range of designs is provided by variable flush exterior views and the use of glass infills and infill panels
  • Door casement frame available framed or with a base profile
  • Casement frame sealing with a lowerable floor seal or with a barrier-free flat threshold and towing seal
  • Colour design with high-quality hwr powder coating

Extras

Explore the heroal Communicator now


The versatile and convenient functions of the heroal Communicator optimally support your work and help you to save time. Ask for your personal access code now, and benefit from updated documents and current product information as well as heroal news and personal support.

Join us! Become a heroal partner

Your customers will know about your commitment to quality thanks to the “powered by heroal” label. Take advantage of targeted support for your company. As our partner, you will become an important part of the heroal brand, which means maximum support for your business. You will be able to purchase products from the entire heroal range and not just single components. You will therefore benefit from the highest level of system reliability.

  • Individual system and software training
  • First-class technical support
  • Individual marketing support, including website building
  • Personal support by responsible field sales team

Would you like a non-binding product consultation?

Request product consultation >

Would you like an insight into our production process?

Sign up for a factory tour >

Would you like to attend heroal training?

Enquire about training >